El Robert Day Sciences Center del Claremont McKenna College, diseñado por el reconocido estudio BIG – Bjarke Ingels Group, es un edificio que redefine cómo la arquitectura puede potenciar la educación científica y la colaboración interdisciplinaria. Ubicado en Claremont, California, este proyecto combina sostenibilidad, tecnología y diseño audaz para inspirar a estudiantes y docentes.


Un edificio que rompe paradigmas educativos y arquitectónicos
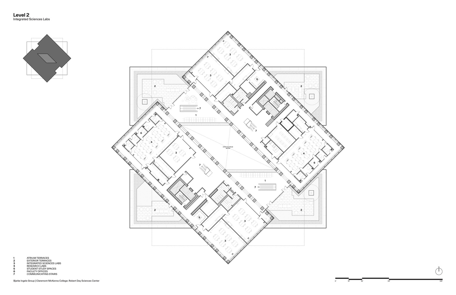
Con aproximadamente 12.540 m² (135.000 ft²), el Robert Day Sciences Center ha sido concebido como un espacio para el aprendizaje experimental y la investigación avanzada. El diseño busca derribar barreras entre disciplinas científicas como la genética, las neurociencias y los estudios del clima.
Los niveles del edificio se rotan entre sí, creando perspectivas únicas, conexiones visuales entre pisos y una circulación fluida que invita a la interacción.
Diseño arquitectónico pensado para la colaboración
Atrio central de doble altura
En el corazón del edificio se encuentra un impresionante atrio abierto, que conecta laboratorios, aulas y zonas de descanso, promoviendo el intercambio de ideas.
Fachada sostenible y de alto impacto visual
Su fachada utiliza paneles de concreto reforzado con fibra de vidrio que imitan texturas de madera, combinando estética con resistencia y bajo mantenimiento.
Espacios dinámicos y sociales
Las escaleras sociales, terrazas exteriores y áreas comunes fomentan la colaboración entre estudiantes, docentes y visitantes, creando un entorno que estimula la creatividad.


Compromiso con la sostenibilidad y el medio ambiente
El proyecto apunta a obtener certificación LEED Gold, incorporando tecnologías para reducir su impacto ambiental:
-
Paneles solares en la cubierta.
-
Estrategias de eficiencia energética.
-
Espacios abiertos que maximizan la iluminación natural.
-
Áreas verdes integradas para el confort térmico y visual.
BIG y su visión educativa disruptiva
Bjarke Ingels y su equipo han diseñado un edificio donde la arquitectura se convierte en herramienta pedagógica.
“Los niveles rotados crean oportunidades para aprender en las intersecciones… un atrio lleno de vida donde las ideas pueden cruzarse”. — Bjarke Ingels
Esta visión potencia la colaboración y la innovación, alineándose con las tendencias de educación flexible y multidisciplinaria que marcan el futuro de la formación universitaria.
Un hito para el campus y la comunidad científica
Situado en la esquina de Ninth Street y Claremont Boulevard, el edificio funciona como una puerta de acceso icónica al campus. Además, es el primer proyecto completado dentro del plan maestro de expansión del Claremont McKenna College diseñado por BIG.
Este espacio no solo alberga aulas y laboratorios; se proyecta como un motor de creatividad científica, donde convergen la investigación, la docencia y el desarrollo de nuevas soluciones para el futuro.


Lo que inspira a Geniales.co
En Geniales.co creemos que la tecnología y el diseño deben trabajar juntos para transformar la educación y los espacios de aprendizaje. Proyectos como el Robert Day Sciences Center demuestran que la arquitectura puede elevar el potencial creativo y científico de las nuevas generaciones.
Al igual que BIG, apostamos por derribar fronteras entre disciplinas y crear soluciones que integren innovación, sostenibilidad y experiencia humana, potenciando la productividad y el aprendizaje.




default


































































![]()
![]()
![]()
![]()
![]()
![]()
![]()
![]()
![]()
![]()
![]()
![]()
![]()
![]()
![]()
![]()
![]()
![]()
![]()
![]()
![]()
![]()
![]()
![]()
Visite nuestro homepage en www.geniales.co
Conozca nuestro blog haciendo clic aquí




